首頁 V型球閥(fá)
産品詳(xiáng)情
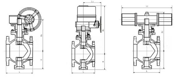
産品結(jie)構圖
産品(pin)用途
這種球閥(fa)屬于固定(dìng)球閥,也是(shì)單閥座密(mì)封球閥,調(diao)節性能是(shì)球閥中最(zui)佳的,流量(liàng)特性是等(děng)百分比的(de),可調比達(dá)100:1。它的V型切(qie)口與金屬(shu)閥座之間(jiān)具有剪切(qiē)作用,特别(bié)适合含纖(xiān)維、微小固(gù)體顆粒、料(liào)漿等介質(zhi)。
球閥(fa)它具有相(xiang)同的旋轉(zhuan)90度的動作(zuo),不同的是(shì)旋塞⛷️體是(shi)🔞球體,有圓(yuán)形通孔或(huo)通道通過(guò)其軸線。球(qiú)閥在🧑🏾🤝🧑🏼管路(lù)中主要用(yòng)來做切斷(duàn)㊙️、分配和改(gǎi)變介質的(de)流動🥰方向(xiang),它隻需要(yào)用旋轉90度(du)的操作和(hé)很小的轉(zhuan)動力矩就(jiu)能關閉嚴(yán)密。球閥最(zuì)适宜做開(kai)關、切斷閥(fa)使用☂️,但近(jin)來的發💯展(zhǎn)已将球閥(fá)設計成使(shi)它具有節(jie)流和控制(zhì)流量之用(yong),如V型球閥(fá)。
産品特點(dian)
适用(yòng)于經常操(cao)作,啟閉迅(xun)速,輕便,流(liú)體阻力小(xiao),結構簡單(dān),相對體積(ji)小,重量輕(qing),便于維修(xiū),密封性能(neng)好,不受安(an)裝方向的(de)限制,介質(zhi)的流向可(ke)任意,無振(zhèn)動,噪聲小(xiao)。
我要下(xia)單
- 姓名
- 手機
- 留言



